SAMPLE DESIGN PLANS

CONCEPTUAL LANDSCAPE PLANS

  • A detailed landscape residential design plan with annotations and photographs showing garden layouts, patios, steps, planting areas, and various landscape features for outdoor spaces design.
  • Preliminary conceptual landscape plan for a residential yard, featuring various plantings, pathways, and structures labeled with notes on native woodland understory plants, oak understory plants, screening shrubs, and gravel or flagstone areas, along with photographic references of different trees and plants on the left and bottom of the plan.
  • A detailed landscape design plan for a residential garden, showing various sections such as herb garden, native garden, vegetable garden, seating areas, pathways, and features like a meditation maze, butterfly and medicinal herb garden, and a compost area. The plan includes labels for each feature and small reference images of the garden elements.
  • A landscape design plan featuring a layout for a yard with labeled areas such as concrete paving, flagstone patio, outdoor patio, and future turf area. The plan includes annotations for various plantings, features like water fountains, boulders, and planting beds. Surrounding the plan are photographs of plants and landscape elements including hydrangeas, fruit trees, a sculpture fountain, flowering plants, fruit-bearing trees, white flowers, and apple trees.

MASTERPLANS

  • A detailed landscape design plan for a community garden or outdoor space, including pathways, trees, water features, seating areas, greenhouses, and various designated zones for gardening, gathering, and habitat.
  • Site plan and elevation views for the Permaculture Skills Center in Sebastopol, California, showing landscape features, structures, gardens, and pathways.
  • A detailed landscape design plan for a permaculture farm and residence, including various pastures, gardens, water features, pathways, and structures.
  • A detailed master plan of a permaculture landscape and farm, showing various zones with water features like ponds and streams, crop areas, alley gardens, water diversion systems, hedgerows, native vegetation areas, and farm buildings, with labels and legend explaining different elements.

PLANTING PLANS

  • Detailed landscape and garden planning diagram showing various plantings, pathways, and features for a residence courtyard. The plan includes a planting legend, designated areas for dog run, food forest, and rainwater harvest tanks, with specific plant types and locations labeled. There are annotations for installing hogwire fences, trellises, and other landscape elements.
  • Planting list showing various plants categorized into trees, ground covers, grasses, shrubs, vines, succulents, broadleaf evergreens, perennials, vegetables, herbs, and annuals, each with images and scientific names.
  • Landscape architectural plan of a residence with various plants labeled and a plant legend indicating botanical and common names, quantities, and remarks.
  • A detailed landscape or site plan of a residence, including various elements like ponds, decks, vegetable gardens, animal pens, driveways, and other outdoor features with a key and numbering system.

IRRIGATION PLANS

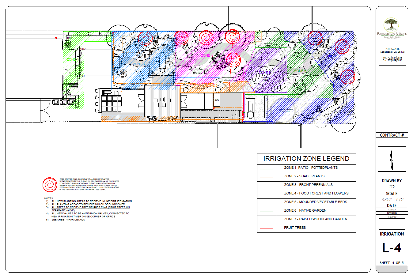
  • Landscape design plan showing irrigation zones, zones marked with colors for patio, shade plants, perennials, food forest, mounded beds, native garden, raised beds, and fruit trees, with detailed legend and notes.
  • Technical irrigation and plumbing installation plan with diagrams, wiring details, and specifications for irrigation controllers, backflow preventers, drip emitters, and related components.
  • Irrigation plan showing zones, connections, and features for a residence with various color codes and annotations.
  • Detailed irrigation plan map showing zones, piping, valves, and trees around a property with legend and measurements.

RAINWATER CATCHMENT PLANS

  • Detailed engineering diagram of a rainwater harvesting system, including rainwater collection, first flush, overflow, tank connection, and irrigation components, with labeled pipe legend and site plan view.
  • Engineering drawing of a rainwater collection and drainage system for a carport and water tank, including detailed specifications, measurements, and notes.
  • Rainwater harvesting plan with diagrams of rain and well connection, first flush elevation, first flush plan view, and first flush connection, including tanks, pipes, and valves.
  • Technical schematic diagram of rainwater harvesting system featuring 2000-gallon tanks, piping, overflow, and drain connections, with labels and specifications for installation and drainage details.

GREY WATER PLANS

  • Diagram and plan views of a greywater drainage system. The left side shows detailed technical drawings including reverse French drain sections, pipe specifications, and flow splitter with a clean out. The right side presents a colored aerial plan of the greywater dispersal area, with locations of pipes, trees, and other elements, marked with labels and directional arrows.
  • Graywater plan view of property with details of mulch basins, surge basin, septic tank, well, and piping layout for a greywater system used to divert water to mulch and disposal fields, with notes on construction and plumbing.
  • Detailed graywater plumbing plan for a residential building, including tanks, valves, and drainage systems, with notes on construction and disposal.
  • Landscape design blueprint showing drainage plan, graywater plan, graywater notes, and graywater calculation for Knudsens residence, including diagrams of systems, specifications, and notes.